Living area
About 171 m²
Plot area
About 417 m²
Construction year
Built in 2000
Number of rooms
5 rooms (4 bedrooms)

J. Van Zantenstraat 96

4194 VC, Meteren (Gelderland)

Magnifiek! Dat is het woord voor deze royale helft van een dubbel woonhuis gelegen in de geliefde wijk Kalenberg te Meteren. Deze prachtige woning is gebouwd in 2000 en is zeer fraai en zeer strak afgewerkt in 2022.

Het geheel is gesitueerd op een mooi hoek perceel van maar liefst 417m2, voorzien van ruime oprit voor meerdere auto’s met carport en een verzorgde achtertuin op het Zuidwesten met een afsluitbare veranda.

Deze fraaie woning (label A) is gebouwd in 2000 met een woonoppervlakte van 171 m2. De woning heeft een grote inpandige garage/berging, nieuwe moderne keuken, strak gestucte wanden en een fraaie pvc-vloer in visgraatmotief.

Fantastische ligging! In de buurt vind je alles wat je nodig hebt, zoals basisscholen, sportmogelijkheden, supermarkt en een uitgebreid gezondheidscentrum. Zowel het centrum van Geldermalsen als het NS-station zijn snel en eenvoudig bereikbaar. Dankzij de centrale ligging nabijgelegen snelwegen zijn de grote steden Utrecht, Gorinchem en ’s-Hertogenbosch binnen zo’n 30 autominuten bereikbaar.

Good to know:
Woonoppervlakte: ca. 171 m2
Perceeloppervlakte: ca. 417 m2
Zonnepanelen: 25 stuks
Construction year: 2000
Energielabel: A (oud label, geldig tot 10-12-2030)
Verbouwingen: Nieuwe keuken 2022

Classification:
Via de oprit komen we aan bij de voordeur. In de riante entreehal valt gelijk het oog op de stalen deur met glas richting de woonkamer. Er is een trapopgang naar de eerste verdieping aanwezig als ook een separaat toiletruimte. Verder is er ook een garderobe nis en de meterkast aanwezig. De toiletruimte is strak afgewerkte met een hangende toilet en een fonteintje.

Eenmaal in de woonkamer, welke gesitueerd is aan de voorzijde, valt het oog op de visgraat houtstructuur pvc-vloer. Wat opvalt is dat zowel in de voor- als achtergevel hele grote raampartijen aanwezig zijn die zorgen voor veel lichtinval. De ruimte leent zicht er goed voor om een ruime en gezellig zit te creëren.

Aan de achterzijde is de keuken gesitueerd. Hier is een schuifpui aanwezig met hor om direct de tuin in te kunnen lopen. De keuken is opgesteld in een U-vorm en biedt daardoor veel werk- en opbergruimte. De keuken is afgewerkt met witte fronten en een natuursteen aanrechtblad, voorzien van diverse luxe inbouwapparatuur die je mag verwachten bij een woning als dit.
Vanuit de keuken komen we in de eetkamer, welke eveneens voorzien is van veel raampartijen en biedt daardoor zicht op de achtertuin en veel privacy. Zo is de keuken echt gescheiden van de woonkamer en kan je heerlijk dineren in de eetkamer. Ideaal voor een groot gezin.

Er is een ruime bijkeuken gemaakt waar we ook het hoge afwerkingsniveau terug te zien is. Deze is voorzien van een vaste kastenwand voor schoenen en schoonmaakaccessoires. Vanuit de bijkeuken gaan we naar de tuin.

De begane grond vloer is grotendeels voorzien van vloerverwarming.

First floor
Een royale overloop geeft toegang tot de drie slaapkamers en de badkamer. Ook is er een separaat toiletruimte aanwezig. Ideaal met een groot gezin. De masterbedroom is ruim opgezet en ingericht met een vaste kastenwand. De badkamer is afgewerkt in lichtgrijze en witte tegels en voorzien van een inloopdouche en een dubbele wastafel voorzien van meubel en een spiegelkast voorzien van opbergruimte.

Second floor
Ook op deze verdieping is een ruime overloop met opbergruimte gerealiseerd. De vaste kastenwand is voorzien van opbergruimte en de aansluitingen voor de wasmachine en droger. Ook de CV-ketel (Nefit, 2022) is hier gesitueerd. Ook vinden we hier de vierde slaapkamer die nu functioneert als logeerkamer.

Garden
Het hoge afwerkingsniveau is ook in de tuin terug te zien. Zowel de voor- als achtertuin zijn magnifiek in de afwerking. Bijna onderhoudsvrij kan je wel zeggen. De voortuin is fraai met een aangelegde voortuin met oprit voor twee of meer auto’s. Ook is er een laadpaal aanwezig en is er toegang tot de berging. De achtertuin is nagenoeg onderhoudsvriendelijke aangelegd. Er zijn enkele borders aanwezig welke zijn voorzien van bloemen en planten en is er kunstgras aanwezig om heerlijk op te kunnen spelen voor de kinderen of te zonnen voor de ouders.
De afsluitbare veranda is een echte must. Met een tuin op het zuidwesten is het fijn om toch soms even de schaduw op te zoeken.

Storage
Er is een aangebouwde stenen berging aanwezig, welke is voorzien van elektra, water en verwarming. Er is voldoende ruimte om hier meerdere fietsen te plaatsen.

Voor de woning is er een eigen oprit om meerdere auto's te kunnen parkeren. Ook is er een carport aanwezig. Zo kunt u heerlijk droog uitstappen uit uw auto en de boodschappen, zonder na te worden, binnen kunt brengen.

Details:
- 25 zonnepanelen; p.st 250 KW, bj 2012
- CV-ketel Trendline HRC CW4 ||, 2022 eigendom
- Keuken dateert van 2022
- Vloerverwarming begane grond
- Zonwering bij de woning, screens, rolluiken en zonneluifel
- Buitenschilderwerk in 2024
- Volledig geïsoleerd conform bouwjaar

Bent u nu enthousiast geworden en wil jij deze hoogwaardig afgewerkte woning bezichtigen, laat het ons dan weten! Wij plannen graag een bezichtiging in.

Acceptance: by mutual agreement

Let op: deze verkooptekst is met zorg samengesteld, maar hieraan kunnen geen rechten worden ontleend. De makelaar handelt conform de WWFT; bij aankoop wordt gevraagd naar de herkomst van de financiering.

Strak afgewerkt, visgraat pvcvloer, buitenschilderwerk 2024, nieuwe keuken 2022

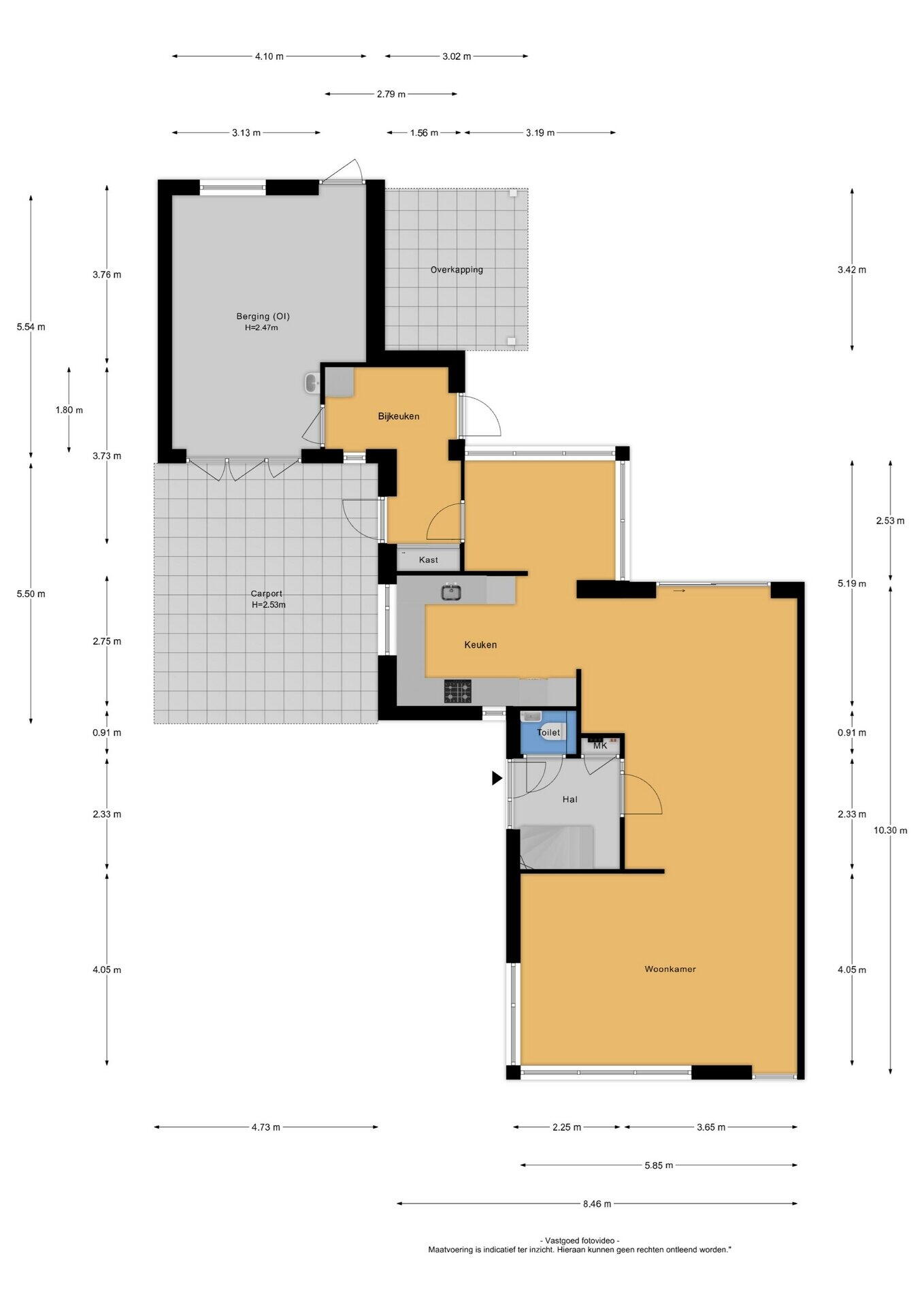
Floor plans

Transfer

Asking price
€ 695,000 k.k.
Status
Sold
Acceptance
In consultation

Construction

Object type
Single-family home, 2-bedroom apartment under one roof
Type of construction
Existing construction
Construction year
2000
Type roof
Schilddak, tiles

Area and content

Living area
171 m²
Plot area
417 m²
Contents
665 m³
Other indoor space
21 m²
Building-related outdoor area
26 m²

Classification

Number of rooms
5 rooms (4 bedrooms)
Number of bathrooms
1 bathroom (1 toilet)
Bathroom facilities
Dubbele wasbak, wastafelmeubel, walk in douche
Number of floors
3 residential levels
Provisions
Zonnepanelen, buitenzonwering

Energy

Energy label
A
Energy label registration
09-12-2013
Isolation
Completely isolated
Heating
Boiler, underfloor heating partially
Hot water
CV boiler
Boiler
Trendline hrc cw4 ||, gas, combiketel, uit 2022, eigendom

Outdoor space

Garden
Back garden

Mine space

Shed / storage
Attached stone storage
Provisions
Elektra, verwarming, stromend water

Energy consumption in Meteren

Energy label this property

Energielabel A

Energy label publication: 09-12-2013

Annual electricity consumption

3480 kWh

(Average under one roof in Meteren)

Annual gas consumption

1230 m³

(Average under one roof in Meteren)

* Figures are derived from CBS and are intended as an indication and may differ for this property

Mortgage costs indicator

Own contribution:
Savings / excess value

Interest:
Lowest 10-year interest rate

Lowest 10-year interest rate

2,78% - Centraal Beheer - NHG


3,04% - Centraal Beheer - 80%

Lowest 20-year interest rate

3,29% - Centraal Beheer - NHG


3,52% - Centraal Beheer - 80%

Lowest 30-year interest rate

3,41% - Centraal Beheer - NHG


3,7% - Argenta - 80%


Mortgage:

Gross monthly expenses: € 0 p/m

Net monthly expenses: € 0 p/m

How do we calculate this?

The interest rate is based on the lowest 10-year fixed rate for a single mortgage part. The stated rate (3.04% zonder NHG) was verified on 02-04-2026. This calculation is based on an annuity mortgage that is fully repaid, with monthly payments remaining the same throughout the entire term. The actual interest rate and net monthly costs may vary depending on your personal situation and the mortgage provider. Consult a financial advisor for an accurate calculation and advice. No rights can be derived from this calculation; it is for indicative purposes only.

Documentation

Cadastral map

Living environment

WOZ valuation report

BAG extract

1-eigendomsinformatie

2-kadastrale-kaart

3-akte-van-levering

4-bodeminformatie

5-bestemmingsplankaart

6-deel-2-vragenlijst

7-lijst-van-zaken

8-energielabel

9-woz-aanslagbiljet

10-meter report

Wie zijn wij?

To make an offer

Download everything

Viewing solar limits

On the map

Residents of Meteren

Statistics for postal code area 4194

Total number of inhabitants
4565 residents
Men
50%
Women
50%

Residents of Meteren

Statistics for postal code area 4194

until 15 years
22%
15 to 25 years
13%
25 to 35 years
27%
45 to 65 years
28%
65 and older
10%

Households in Meteren

Statistics for postal code area 4194

Single without children
21%
Multiple persons without children
30%
Households without children
51%

Households in Meteren

Statistics for postal code area 4194

Households with one child
6%
Households with multiple children
43%
Households with children
49%

Homes in Meteren

Statistics for postal code area 4194

Housing for 1945
8%
Houses between 1945 and 1965
6%
Houses between 1965 and 1975
2%
Houses between 1975 and 1985
4%
Houses between 1985 and 1995
2%

Homes in Meteren

Statistics for postal code area 4194

Homes between 1995 and 2005
52%
Homes between 2005 and 2015
11%
Homes after 2015
15%
Rented apartments
20%
Purchase properties
80%

Other income Meteren

Statistics for postal code area 4194

Average WOZ value
€ 335.000,-
People under 65 with disability benefits
3%

Other income Meteren

Statistics for postal code area 4194

Addresses per square kilometer
639
"Urbanity (scale 1 to 5)"
40%
Postcode kaart 4194 Gemeente kaart west betuwe

De Bruin Makelaars

If you have questions or would like to schedule a viewing, you can use the form on the right. You will then be contacted shortly thereafter.

Wij doen het samen!

Brigitte van Taxatie-makelaar de Bruin is de gepassioneerde makelaar die je helpt bij het vinden van de perfecte woning die aansluit op jouw wensen. Ze luistert aandachtig en begeleidt je in de zoektocht naar je ideale thuis.

Voor verkoop, taxatie en verhuur van je woning staat Brigitte voor je klaar. Ze hanteert een persoonlijke, energieke en deskundige aanpak en streeft naar een geslaagd resultaat voor alle betrokkenen.

Zet je de stap om een huis te kopen, verkopen, verhuren of laten taxeren? Dat is een spannend moment met impact op jouw toekomst en financiën. Wij staan graag voor je klaar met advies, omdat we gek zijn op het helpen van mensen en het vinden van prachtige huizen. Vertel ons wat je zoekt en verwacht, en wij luisteren, onderhandelen en zorgen voor de beste deal voor jouw droomwoning.

Wij doen het samen!
Reviews De Bruin Makelaars

J. Van Zantenstraat 96, Meteren

€ 695,000 k.k. - Sold

Helaas, deze woning is verkocht!

Net te laat, deze woning is al verkocht. Laat een zoekopdracht bij ons achter zodat wij u direct kunnen helpen wanneer er nieuw aanbod beschikbaar komt.